Bạn đang có ý định thiết kế biệt thự song lập, nhưng chưa biết thiết kế như thế nào cho đẹp? Hôm nay mình sẽ giới thiệu đến các bạn những mẫu biệt thự song lập đẹp mà ai cũng muốn có: Tổng hợp 25 mẫu biệt thự song lập 2 phòng ngủ đẹp trên thế giới.

Thiết kế biệt thự song lập bản vẽ 3D

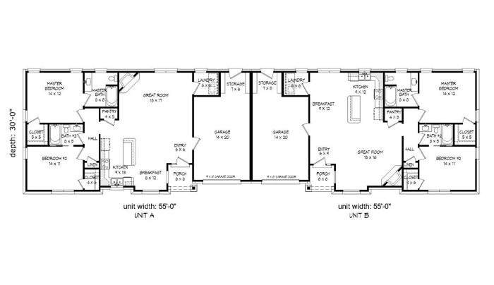
Bản vẽ kỹ thuật tầng 1

Bản vẽ kỹ thuật tầng 2
Tổng diện tích xây dựng: 2568 sq.ft = 238.5m2
Tổng diện tích sinh hoạt các tầng: 1284 sq.ft= 119m2
Tầng 1: 64m2
Tầng 2: 55m2
Rộng: 6.4m
Sâu: 8.5m
Phòng ngủ: 2
Phòng tắm 2
Mẫu số 2: Mẫu thiết kế biệt thự song lập 1 tầng 2 phòng ngủ đẹp mê


Tổng diện tích biệt thự: 228m2
Tổng diện tích sinh hoạt: 114m2
Tầng 1: 114m2
Rộng : 33.5m
Sâu: 9m
Phòng ngủ: 2
Phòng tắm 2
Garage: 1
Mẫu số 3: Thiết kế biệt thự song lap 2 tầng đẹp 261m2



Tổng diện tích biệt thự: 261m2
Tổng diện tích sinh hoạt các tầng: 130.8m2
Tầng 1: 64m2
Tầng 2: 67m2
Rộng: 6.6m
Sâu: 15m
Phòng ngủ: 2
Phòng tắm: 2
Garage: 1
Mẫu số 4: Bản vẽ thiết kế biệt thự song lập 2 tầng đẹp 302m2



Tổng diện tích biệt thự: 302m2
Tổng diện tích sinh hoạt các tầng: 151m2
Tầng 1: 97m2
Tầng 2: 54m2
Rộng: 6m
Sâu: 18m
Phòng ngủ: 2
Phòng tắm: 2
Gara: 1
Phong cách hiện đại
Mẫu số 5: Phong cách thiết kế kiến trúc biệt thự song lập 2 tầng đẹp



Tổng diện tích biệt thự: 304.5m2
Tổng diện tích các tầng: 152m2
Tầng 1: 75m2
Tầng 2: 77.5m2
Rộng: 9m
Sâu: 14.5m
Phòng ngủ: 2
Phòng tắm: 2
Gara: 2
Phong cách thiết kế: Châu Âu
Mẫu số 6: Bản vẽ thiết kế nội thất biệt thự song lập 2 tầng 2 phòng ngủ đẹp



Tổng diện tích biệt thự: 175.5m2
Tổng diện tích sinh hoạt các tầng: 175.5m2
Tầng 1: 46m2
Tầng 2: 42m2
Rộng: 10m
Sâu: 9m
Phòng ngủ: 2
Phòng tắm:1.1
Hướng phong thủy: hướng nam
Mẫu số 7: Bản vẽ thiet ke biet thu song lap 1 tầng


Tổng diện tích biệt thự: 172m2
Tổng diện tích sinh hoạt: 86m2
Diện tích biệt thự tầng 1: 86m2
Rộng: 16m
Sâu: 13.4m
Phòng ngủ: 2
Phòng tắm: 1
Gara: 1
Mẫu số 8: Bản vẽ thiet ke noi that biệt thự song lap 1 tầng 2 phòng ngủ 92m2


Tổng diện tích biệt thự: 92m2
Tồng diện tích sinh hoạt các tầng: 92m2
Diện tích tầng 1: 92m2
Rộng: 20m
Sâu: 11m
Phòng ngủ: 2
Phòng tắm: 2
Hướng: Nam
Mẫu số 9: Mẫu bản vẽ thiết kế nội thất biệt thự 1 tầng đẹp


Tổng diện tích biệt thự: 231.7m2
Tổng diện tích sinh hoạt: 116m2
Diện tích tầng 1: 116m2
Rộng: 17m
Sâu: 18m
Phòng ngủ: 2
Phòng tắm: 2
Gara: 1
Mãu số 10: Phong cách thiết kế biệt thự song lập 1 tầng 2 phòng ngủ đẹp


Tổng diện tích biệt thự: 76.6m2
Tổng diện tích sinh hoát: 76.6m2
Tầng 1: 76.6m2
Rộng: 18m
Sâu: 10.2m
Phòng ngủ: 2
Phòng tắm: 2
Hướng: Nam
Mẫu số 11: Biệt thự song lập 1 tầng đẹp


Tổng diện tích biệt thự: 165m2
Tổng diện tích sinh hoạt: 77m2
Tầng 1: 77m2
Rộng: 22m
Sâu: 11.5m
Phòng ngủ: 2
Phòng tắm: 1
Hướng: Nam
Mẫu số 12: Biệt thự đẹp 2 tầng



Tổng diện tích biệt thự: 192m2
Tổng diện tích sinh hoạt các tầng: 89m2
Tầng 1: 44m2
Tầng 2: 45m2
Rộng: 13m
Sâu: 9.5 m
Phòng ngủ: 2
Phòng tắm: 2
Hướng: Nam
Mẫu số 13: Biệt thự đẹp 1 tầng 2 phòng ngủ


Tổng diện tích biệt thự: 176m2
Tổng diện tích sinh hoạt các tầng: 89m2
Tầng 1: 89m2
Rộng: 15m
Sâu: 12m
Phòng ngủ: 2
Phòng tắm:1
Mẫu số 14: Thiết kế biệt thự song lập đẹp 2 tầng



Tổng diện tích biệt thự: 186.5m2
Tổng diện tích sinh hoạt các tầng: 91m2
Tầng 1: 46m2
Tầng 2: 45m2
Rộng: 13.4m
Sâu: 9.5m
Phòng ngủ: 2
Phòng tắm:1
Mẫu số 15: Thiết kế Biệt thự đẹp 1 tầng 201m2



Tổng diện tích biệt thự: 201m2
Tổng diện tích sinh hoạt: 100.6m2
Rộng: 21m
Sâu: 13.4m
phòng ngủ: 2
Phòng tắm: 2
Phong cách: hiện đại
Mẫu số 16: Biệt thự song lập 1 tầng 201m2


Tổng diện tích biệt thự: 201m2
Tổng diện tích sinh hoạt: 100.6m2
Rộng: 21m
Sâu: 13.4m
Phòng ngủ: 2
Phòng tắm: 2
Phong cách : châu âu
Mẫu số 17: Biet thu song lap 2 tầng 2 phòng ngủ



Tổng diện tích biệt thự: 220m2
Tổng diện tích sử dụng: 106m2
Rộng: 12.1m
Sâu: 11m
Phòng ngủ: 2
Phòng tắm:1.1
Mẫu số 18: Thiết kế Biệt thự 2 tầng



Tổng diện tích biệt thự: 221m2
Tổng diện tích sử dụng: 107m2
Rộng: 14.6m
Sâu: 8.5m
Phòng ngủ: 2
Phòng tắm: 1.1
Phong cách: hiện đại
Mẫu số 19: Biệt thự song lập hiện đại 2 tầng 2 phòng ngủ



Tổng diện tích biệt thự: 213m2
Tổng diện tích sử dụng: 107m2
Rộng: 12m
Sâu: 11
Phòng ngủ: 2
Phòng tắm:1.1
Phong cách: châu âu
Mẫu số 20: Mẫu thiết kế Biệt thự song lập 2 tầng 229m2



Tổng diện tích biệt thự: 229m2
Tổng diện tích sử dụng: 107m2
Rộng: 15m
Sâu: 8.5
Phòng ngủ: 2
Phòng tắm: 1.1
Mẫu số 21: Thết kế biệt thự 2 tầng 248m2



Tổng diện tích biệt thự: 248m2
Tổng diện tích sử dụng: 117m2
Rộng: 14m
Sâu: 10.3m
Phòng ngủ: 2
Phòng tắm: 1.1



Tổng diện tích biệt thự: 261m2
Tổng diện tích sử dụng: 117m2
Rộng: 15m
Sâu: 10m
Phòng ngủ: 2
Phòng tắm: 1
Mẫu số 23: Thiet ke biệt thự 1 tầng 2 phòng ngủ


Tổng diện tích biệt thự: 257m2
Tổng diện tích sử dụng: 129m2
Tầng 1: 99m2
Rộng: 16.5m
Sâu: 15.8m
Phòng ngủ: 2
Phòng tắm: 2
Gara: 1
Mẫu số 24: Biệt thự song lập 1 tầng


Tổng diện tích biệt thự: 139m2
Tổng diện tích sử dụng: 139m2
Tầng 1: 130m2
Rộng: 16.7m
Sâu: 13m
Phòng ngủ: 2
Phòng tắm: 1
Mẫu số 25: Mẫu thiết kế Biệt thự song lập 2 tầng 419m2



Tổng diện tích biệt thự: 419m2
Tổng diện tích sử dụng: 209.5m2
Tầng 1: 105m2
Tầng 2: 97m2
Rộng: 17m
Sâu: 14.5m
Phòng ngủ: 2
Phòng tắm: 2
Gara: 8
Nguồn: Internet
Vậy là chúng ta vừa tham quan xong 25 mẫu thiet ke biet thu song lap 2 phòng ngủ đẹp. Bạn đã chọn được cho mình mẫu thiết kế biệt thự song lập nào chưa?? Những mẫu thiet ke biet thu song lập này hứa hẹn sẽ mang lại một không gian sống tuyệt vời cho gia đình bạn.
Nếu bạn cần tư vấn kỹ hơn về bản vẽ 3D, phong cách thiết kế, nội thất biệt thự, bản vẽ kỹ thuật xây dựng hay thi công nội thất biệt thự. Hãy liên hệ với chúng mình qua số hotline : 0975438686. Chúng mình luôn sẵn sàng để phục vụ bạn và gia đình.
Hoặc bạn có thể trực tiếp tới văn phòng của chúng mình tại địa chỉ: 643A Phạm Văn Đồng, tầng 3, tòa T6-08 khu đô thị Nam Cường ( Đôi diện Bộ Công An).
Hân hạnh được đón tiếp!!
>>>Click để xem thêm nhiều mẫu thiết kế biệt thự đẹp của chúng mình bạn nhé!